JAcobus 12 Kwadraat vrijstaand front
De JAcobus 12 Kwadraat vrijstaand front is, net zoals de rest van de JAcobus kachels, een strak model dat goed tot zijn recht komt in een moderne woning. Houdt u meer van een robuuste uitstraling? Dan kunt u ervoor kiezen om een betonnen omkleding aan de kachel toe te voegen (zie extra’s voor de meerprijs).
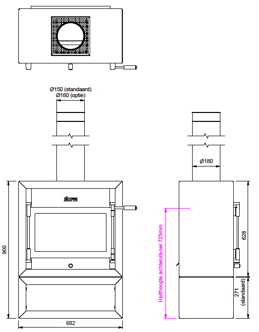
De hoogte van de kachel wordt bepaald door het onderstel. Deze heeft standaard een hoogte van 90 cm en is als maatwerk in iedere afmeting verkrijgbaar. Dat geldt voor zowel de hoogte als de breedte, het onderstel kan dus ook breder dan de kachel worden geleverd waardoor er een soort plateau wordt gecreëerd. Daarnaast kan de kachel kan zowel als front en als doorkijkmodel worden geleverd. De mogelijkheden zijn eindeloos bij de Kwadraat serie!
Experience Center
Twijfelt u nog over u keuze? Of wilt u vergelijkbare kachels brandend zien? Dan bent u van harte welkom om in ons Experience Center waar wij verschillende houtkachels opgesteld hebben staan.
Product downloads
